Richard Ferguson
(604) 618-1019
Its Time to Downsize.ca
Facebook
Twitter
+ Menu
Home
MLS Search
Listings
Locations
Blog
Contact
BRAND NEW LISTING
Building
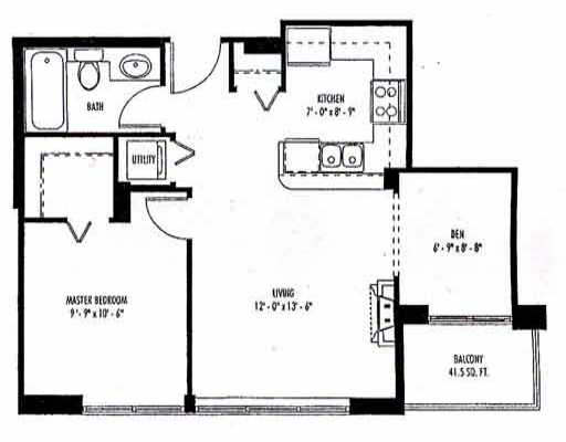
Floorplan
Building 2
Building 3
Entrance
Lobby
Contact Richard